Однокомнатная квартира в новостройке 37,60 м2 по ул. Фестивальная 27 за 2769052 руб.

Адрес
Адрес Фестивальная, 27
Описание
Цена 2 769 052 р. (73 645 р./м2)
Подать заявку на ипотеку
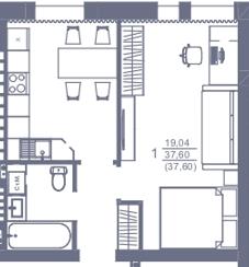
Количество комнат Однокомнатная
Этаж 1
Этажность дома 3
Общая S, м2 37,60
Жилая S, м2 0,00
S кухни, м2 0,00
🏠 S - 37,6 кв.м Теплый пол! 🏠расположение: ЖК Золотой квартал, с. Нежинка, 70 лет Победы ✅ предчистовая отделка WНIТЕ ВОХ. В которую входит: • Выровненный бетонный пол, уже подготовленный под любое финишное покрытие • Установленные оконные блоки с подоконниками, с выровненными откосами • Выровненные, оштукатуренные и прогрунтованные стены • Ровные подготовленные потолки • Готовая система отопления • Разведенная от электрощитка проводка по всем комнатам • Монтаж входной двери • Выполнены все сантехнические манипуляции, обустроены водопровод и канализация Одно из главных преимуществ этого дома – малое количество квартир, особая и уютная атмосфера, а также индивидуальное отопление каждой квартиры и подача горячей воды, для этого установлен двухконтурный газовый котёл НАVIЕN DЕLUХЕ. Большой плюс - сельская прописка - минус 70% на ОСАГО, а также расценки за газ и коммунальные услуги существенно сэкономят платежи из семейного бюджета. Дом обладает внешней привлекательностью, отличным теплоизоляционными и шумоизоляционными характеристиками. Весь квартал асфальтирован - проблем с парковкой нет, ежедневно школьный автобус отвозит и привозит детей с лицея, в ближайшей доступности уже построенный детский сад, торговая сеть Пятёрочка. Так же в самом ЖК имеется 2 продуктовых магазина, пекарня, своя Управляющая компания, фельдшерский пункт. ✅ Инфраструктура: рядом Европейский лицей, а также есть школьный автобус, который доставит Ваших детей до лицея. В 5 минутах - детский сад КРОНА, Пятёрочка, Магнит , Ваниль, своя Управляющая компания, фельдшерский пункт. id: 16984
Квартира в новостройке в Санкт-Петербурге
Дата 01.07.2025 23:45:27
Объявление № 22717751
Дата подачи:
2 июля 2025 г. 3:45
Дата обновления:
2 июля 2025 г. 3:45
Просмотров 21 Хотите продать быстрее?

Продавец
Агентство недвижимости:
НОВОСТРОЙКИ ЗАСТРОЙЩИК
email: ostatkiavega@gmail.com
Показать номер телефона
Пожаловаться
Комментарии:
Добавить